042-313-9555
定休日:水曜日、土曜日、日曜日
営業時間:10:00~14:00
ハウスドゥの売りたい
ハウスドゥの店舗情報
お客様がお気に入りに登録された物件を最大30物件まで、30日間保存できます。
価格
土地面積
建物面積
駅徒歩
間取り
82 件 / 全177件
チェックした物件をまとめて
西武国分寺線「小川」駅徒歩12分!小平第十三小学校・小平第二中学校へ徒歩10分圏内!
4,499万円
所在地
交通
西武国分寺線 『小川駅』 まで徒歩12分
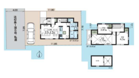
担当者より1Fに洋室2部屋と納戸、2Fに20帖超のLDK、浴室、洗面室、リネン庫がある間取りの新築戸建です!吹抜け、ロフトがあります!ぜひ一度ご覧ください!
担当エージェント:岩下直樹
西武新宿線「小平」駅徒歩11分!小平第七小学校へ徒歩8分!大沼保育園へ徒歩6分!
3,580万円
西武新宿線 『小平駅』 まで徒歩11分
担当者より2025年リフォーム済の中古戸建!キッチン・UB・洗面台・トイレ新品交換!外壁屋根塗装、住宅設備交換、床材貼替、クロス・クッションフロア貼替等!ぜひ一度ご覧ください!
西武国分寺線「小川」駅徒歩17分!
3,680万円
西武国分寺線 『小川駅』 まで徒歩17分
5,780万円
JR武蔵野線 『新小平駅』 まで徒歩11分西武多摩湖線 『一橋学園駅』 まで徒歩11分
店頭ではHPに掲載できない物件を併せて 204件をご案内できます!
店頭で
ご希望にマッチした物件や、新着・値下げ情報を 即日メールにてお届けします!
Webで